Modulbyggda hus / stugor / garage mm.
Vi erbjuder ett byggnadsalternativ som håller mycket hög kvalitet och är enkel för såväl vana byggnadsarbetare som ”hemmasnickaren”, att på kort tid resa upp byggnaden och komma ”under tak”.
Våra kunder är i dagsläget ”privata självbyggare” samt olika byggentreprenörer.
Vår produkt består i prefabricerade väggmoduler med en standardbredd på 1200 mm (även fönster och dörrmoduler). Vägghöjd på hammarband är som standard i sex alternativ: 2.500 mm, 2.700 mm, 2.900 mm, 3.700 mm, 3.900 mm eller 4.700 mm. De alternativa höjderna innebär att modulerna kan användas till bostads/fritidshus eller andra byggnader som t.ex förråd eller garagebyggnader.
Konstruktionen med förmonterad grundmålad ytterpanel består av stolpresning 45×120 alt. 45×170 mm, vidare är ett diffusionsöppet vindskydd monterat direkt mot stolparna bestående av polypropen som laminerats med en polyetenfolie. Vindduken som har en överlappning i varje skarv viks omlott och häftas mot stolpen efter montering (utesluts för kalla förråd etc.).
För att säkerställa en tät och hållbar ytterpanel monteras spikläkten (34×70 mm) med täta mellanrum. Som ytterpanel använder vi en stående panel med 22×145 mm som bottenbräda och lockbräda 22x95mm.
Ytterpanelen är som standard mellanstruken i vit eller röd kulör.
Modulerna tillverkas i fixtur vilket utesluter måttavvikelser i höjd och bredd.
Ett annat alternativ där byggnaderna är garage, maskinhallar etc består konstruktionen i enbart stomme med monterad vindduk och skruvläkt. Ytterbeklädnaden är i sådana fall oftast korrigerad plåt i färdiga längder som eftermonteras.
Vi har valt att endast leverera moduler utan isolering i syfte att helt eliminera risken att fukt byggs in i väggen, vilket allt för ofta sker med prefabricerade huskonstruktioner. Andra fördelar med detta är att vikten reduceras per enhet och förenklar monteringen som kan göras utan lyftanordningar eller kran. Utöver detta erhålls en garanterat tät fuktspärr invändigt efter att isolering monterats.
ISOLERING
Isoleringen kan begränsas till 120 eller 170 mm dvs. utrymmet i konstruktionens stolpresning . Vill man ytterligare förbättra stugans isolering så fylls först utrymmet som utgör konstruktionens stolpbredd + en stående regel 70 eller 45 mm och där monteras kondensskyddet (UV beständig byggplast). Därefter monteras en liggande regel 45×45 mm som isoleras med 45 mm mineralull.
Sedan monteras t.ex träfiberskiva (OSB) och gipsskiva som därmed utgör färdig innerväggsbeklädnad.
Fördelen med denna metod är att tätskiktet inte behöver perforeras av t. ex rör och dosor för elmontage då detta görs i det 45 mm utrymme som skapas mellan tätskikt och korsregling.
Observera att den andra beskrivna korsreglingen som saknar kondensskydd inte får i överstiga 45 mm.
Här ser du exempel på de modulbyggda hus som vi tillverkar. Konstruktionen består i färdiga moduler med en bredd av 1200 mm vilka kan hanteras utan hjälp av kran eller annan lyftanordning, vikten på varje block är mellan 65 – 90 kg. Varje modul har identiska yttermått vilket innebär att du kan ”plocka ihop” din egen drömstuga efter egna önskemål.
Du väljer var fönster och dörröppningar ska vara och eftersom takkonstuktionen är självbärande gör du rumsindelningen utan begränsningar av bärande mellanväggar.
Modulerna är förberedda för isolering med vinduk monterad och utvändig stående ytterpanel. Monteringen av blocken är enkel och kräver inga särskilda kunskaper, utifrån den medföljande monteringsanvisningen och ritningar görs stomresningen med montering av takstolar av två man på ca 2-3 dagar för stugor / 4-5 dagar för villa.
Under normala förhållanden står stugan klar utvändigt och under tak med monterade fönster och ytterdörr på mindre än två veckor av två man!
Övrigt material såsom reglar, isolering, tätskikt, eldosor, elrör, fönster, dörrar, tak mm. levereras efter önskemål.
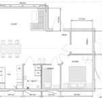
1-plan Fritidshus ”Stina” 92 kvm
Med ”Huset under tak” menas att leveransen innehåller allt material som behövs för att få huset sk. ”snickarklart” utvändigt bestående av moduler med en stående förmonterad och grundmålad ytterpanel av typen lockpanel. Grundmålade knutbrädor och foder ingår.
Modulerna är förberedda för isolering med en förmonterad vindduk. Huset isoleras alltså inifrån när taket är på plats. Isolering ingår ej i priset.
Takstolar och ett komplett yttertak ingår med grundmålade vindskivor, hängbrädor och vattenavrinning. Yttertaket består av plåttak typ Trp 20 och undertaket kan vara antingen råspont eller genomtrampsäker kondensduk med bärläkt beroende på hustyp.
Fönster och ytterdörr ingår efter den ritning som finns på hemsidan.
Detaljer som fönstersmygar, lister etc ingår inte i leveransen.
Grund i form av gjuten betongplatta eller bjälklagskonstruktion ingår ej.
1-plan Fritidshus ”Felicia” 77 kvm
Med ”Huset under tak” menas att leveransen innehåller allt material som behövs för att få huset sk. ”snickarklart” utvändigt bestående av moduler med en stående förmonterad och grundmålad ytterpanel av typen lockpanel. Grundmålade knutbrädor och foder ingår.
Modulerna är förberedda för isolering med en förmonterad vindduk. Huset isoleras alltså inifrån när taket är på plats. Isolering ingår ej i priset.
Takstolar och ett komplett yttertak ingår med grundmålade vindskivor, hängbrädor och vattenavrinning. Yttertaket består av plåttak typ Trp 20 och undertaket kan vara antingen råspont eller genomtrampsäker kondensduk med bärläkt beroende på hustyp.
Fönster och ytterdörr ingår efter den ritning som finns på hemsidan.
Detaljer som fönstersmygar, lister etc ingår inte i leveransen.
Grund i form av gjuten betongplatta eller bjälklagskonstruktion ingår ej.
Loftstuga ”Torpet” 58 kvm
Med ”Huset under tak” menas att leveransen innehåller allt material som behövs för att få huset sk. ”snickarklart” utvändigt bestående av moduler med en stående förmonterad och grundmålad ytterpanel av typen lockpanel. Grundmålade knutbrädor och foder ingår.
Modulerna är förberedda för isolering med en förmonterad vindduk. Huset isoleras alltså inifrån när taket är på plats. Isolering ingår ej i priset.
Takstolar och ett komplett yttertak ingår med grundmålade vindskivor, hängbrädor och vattenavrinning. Yttertaket består av plåttak typ Trp 20 och undertaket kan vara antingen råspont eller genomtrampsäker kondensduk med bärläkt beroende på hustyp.
Fönster och ytterdörr ingår efter den ritning som finns på hemsidan.
Detaljer som fönstersmygar, lister etc ingår inte i leveransen.
Grund i form av gjuten betongplatta eller bjälklagskonstruktion ingår ej.
Torpet med loft 47 kvm
Med ”Huset under tak” menas att leveransen innehåller allt material som behövs för att få huset sk. ”snickarklart” utvändigt bestående av moduler med en stående förmonterad och grundmålad ytterpanel av typen lockpanel. Grundmålade knutbrädor och foder ingår.
Modulerna är förberedda för isolering med en förmonterad vindduk. Huset isoleras alltså inifrån när taket är på plats. Isolering ingår ej i priset.
Takstolar och ett komplett yttertak ingår med grundmålade vindskivor, hängbrädor och vattenavrinning. Yttertaket består av plåttak typ Trp 20 och undertaket kan vara antingen råspont eller genomtrampsäker kondensduk med bärläkt beroende på hustyp.
Fönster och ytterdörr ingår efter den ritning som finns på hemsidan.
Detaljer som fönstersmygar, lister etc ingår inte i leveransen.
Grund i form av gjuten betongplatta eller bjälklagskonstruktion ingår ej.
Torpet med loft 40 kvm
Med ”Huset under tak” menas att leveransen innehåller allt material som behövs för att få huset sk. ”snickarklart” utvändigt bestående av moduler med en stående förmonterad och grundmålad ytterpanel av typen lockpanel. Grundmålade knutbrädor och foder ingår.
Modulerna är förberedda för isolering med en förmonterad vindduk. Huset isoleras alltså inifrån när taket är på plats. Isolering ingår ej i priset.
Takstolar och ett komplett yttertak ingår med grundmålade vindskivor, hängbrädor och vattenavrinning. Yttertaket består av plåttak typ Trp 20 och undertaket kan vara antingen råspont eller genomtrampsäker kondensduk med bärläkt beroende på hustyp.
Fönster och ytterdörr ingår efter den ritning som finns på hemsidan.
Detaljer som fönstersmygar, lister etc ingår inte i leveransen.
Grund i form av gjuten betongplatta eller bjälklagskonstruktion ingår ej.
Funkis med loft 49 kvm
Med ”Huset under tak” menas att leveransen innehåller allt material som behövs för att få huset sk. ”snickarklart” utvändigt bestående av moduler med en stående förmonterad och grundmålad ytterpanel av typen lockpanel. Grundmålade knutbrädor och foder ingår.
Modulerna är förberedda för isolering med en förmonterad vindduk. Huset isoleras alltså inifrån när taket är på plats. Isolering ingår ej i priset.
Takstolar och ett komplett yttertak ingår med grundmålade vindskivor, hängbrädor och vattenavrinning. Yttertaket består av plåttak typ Trp 20 och undertaket kan vara antingen råspont eller genomtrampsäker kondensduk med bärläkt beroende på hustyp.
Fönster och ytterdörr ingår efter den ritning som finns på hemsidan.
Detaljer som fönstersmygar, lister etc ingår inte i leveransen.
Grund i form av gjuten betongplatta eller bjälklagskonstruktion ingår ej.













































